欢迎进入天津津建工程有限公司有限公司官网
热线电话:022-26292316 | 26292359
津建造价logo 津建造价文字
  • 网站首页
  • 走进津建
  • 业务板块
  • 新闻资讯
  • 专业培训
  • 在线招聘
  • 联系我们
  • 企业简介
  • 组织架构
  • 公司资质
  • 企业荣誉
  • 领导致辞
走进津建

走进津建

  • 工程咨询
  • 工程造价
  • 招标代理
  • 项目管理
项目建议书
项目申请报告
评估、评审咨询
绩效评价
后评价
灾害风险评估
水土保持方案
环境影响评价
社会稳定性风险分析与评估
工程量清单及控制价编制与审核
工程概预算投资估算造价咨询
工程竣工结算的编制与审核
全过程造价控制咨询
工程造价纠纷的司法鉴定咨询
建设工程招标代理
政府采购招标代理
央企国企招标代理
社会资本招标代理
项目报批报建管理
规划设计阶段管理
项目实施阶段管理
竣工移交阶段管理
  • 公司新闻
  • 行业新闻
  • 声明公告
新闻资讯

新闻资讯

  • 首页
  • 走进津建
    • >> 组织架构
    • >> 公司资质
    • >> 企业荣誉
    • >> 领导致辞
  • 业务板块
    • >> 工程咨询
    • >> 工程造价
    • >> 招标代理
    • >> 项目管理
  • 新闻资讯
    • >> 公司新闻
    • >> 行业新闻
    • >> 声明公告
  • 专业培训
  • 在线招聘
  • 联系我们
001
003
004
当前位置: 网站首页 > 业务板块 > 工程造价 > 全过程造价控制咨询 >

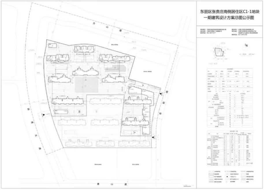
张贵庄南侧居住区C1地块工程全过程造价咨询服务项目

发布时间:2024-04-09
张贵庄南侧居住区C1地块工程全过程造价咨询服务项目

快速导航

走进津建

企业简介 组织架构 公司资质 企业荣誉 领导致辞

业务板块

工程咨询 工程造价 招标代理 项目管理

新闻资讯

公司新闻 行业新闻 声明公告

联系我们

地址:天津市河北区狮子林大街200号泰鸿大厦7层

电话:(022) 26292316

传真:(022)26292317

E-mail:jinjianzaojia2007@126.com

二维码
微信扫一扫进官网
二维码
微信扫一扫加好友

COPYRIGHT © 2024 天津津建工程咨询有限公司     津ICP备18010254号    津公网安备 12010502100016号